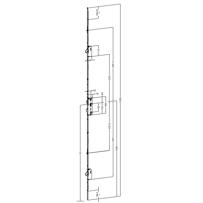
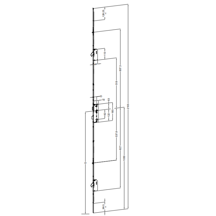
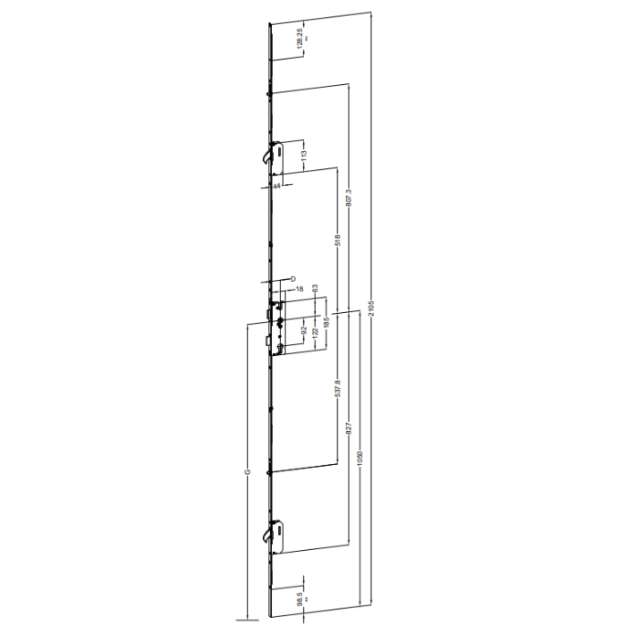
5097333 WINKHAUS serrure à relevage – axe 55 / entraxe 92 / 3 galets
Prix
78,60 €
Serrure réversible 3 galets rallongeable et recoupable Manœuvre à relevage
Sans pêne dormant Axe 55 mm Entraxe 92 mm carré de...
